






























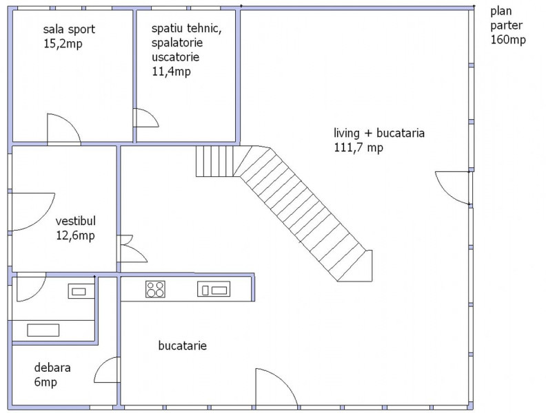
Situata pe malul lacului Snagov, la 3,5 km de la DN1, vila se compune din 3 dormitoare, 3 bai,living 100mp - include bucataria, sala de sport, sauna si spatiu tehnic .Vila cu vedere superba si iesire directa la lacul Snagov ,dispune de o terasa de 100mp, partial acoperita, piscina de 40 mp incalzita cu 8 panouri solare care produc si apa calda menajera. Liniste, intimitate, fara vecini in apropiere , perspectiva catre lacul Snagov nemarginita.
Teren in suprafata de 2000 mp, cu posibilitatea de extindere la 3000 mp. Curtea este amenajata cu gazon, arbusti, flori.
Ceea ce se vinde nu este doar o casa si cu terenul aferent, ci un alt mod de viata: acces direct la lac (pescuit, canoe etc), piscina functionala in mare parte din an, cu apa incalzita de panouri solare, legume sanatoase din solarul ingrijit de proprietar si, nu in ultimul rand, aer curat, vegetatie luxurianta, multa liniste si o priveliste deosebita, cu cele mai spectaculoase apusuri de soare.
Va invit, cu mult drag, sa vizionam impreuna aceasta minunata proprietate.
Lasati-ne sa va trimitem oferte portrivite pe email !